Annotation |
![]() ![]()
|
Annotation is a set of notes, which overlaid T-FLEX CAD drawing. Annotation is saved in separate GRN file which content is displayed in annotated drawing. The original drawing itself is not changed. Creation and edition of annotations is performed using annotations editor.
Annotating allows the head of department, verifier or any other employee to add comments to the document without editing the original document. This functionality may be helpful for team development, especially when working with document management system.
There can be several annotations in one document. The annotations can be created by different people. A list of all document annotations is stored in GRI file. The file name is the same as for document.
You should use AT: Annotations command to manage annotations. It shows a list of annotations for the current document, allows to show/hide annotations and to activate annotations editor.
Annotations Command
You should use AT: Annotations command to manage annotations. The command is called via:
Icon |
Ribbon |
|---|---|
|
Tools → Tools → Annotations |
Keyboard |
Textual Menu |
<AT> |
Tools > Annotation |
The command brings up a dialog that contains a list of annotations created for the current document.

Annotations with active flag are displayed in the drawing window. If you want to hide an annotation, you can disable the flag.
Priority of annotations on the drawing is determined by their order in the list. Use buttons [Up] and [Down] to change annotations order in the list. For example, you can display the text and dimensions from one annotation above the fill from another using the buttons.
Information about annotations is displayed in “User name”, “Version” and “Comment” columns. The information can be edited.
To create a new annotation use [New…] button. The dialog window for the filename (By default “Annotation №.grn”) and directory selection appears. Annotation files are stored in GRB file directory by default.
You can open the selected annotation for editing using [Open] button.
You can delete the selected annotation using [Delete] button.
Annotations Editing
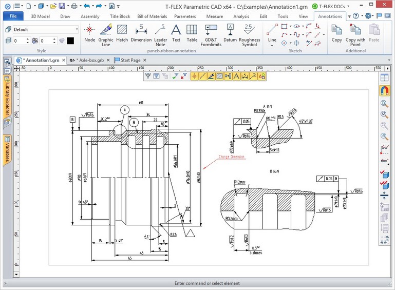
When you open an annotation, system activates annotation edit mode. There are fewer elements available for creation/edition in the edit mode. Nodes, graphic lines, sketches, dimensions, text, hatch, leader notes and some other options are available for annotations.
All created elements are colored red by default.
Special tab with available commands appears after annotation opening.

Commands for system and drawing setup, toolbars and windows management are available.
Annotation creation is similar to creation of T-FLEX CAD fragment in the assembly mode. You can snap elements to nodes and graphic lines of the original document. If the drawing will be changed cause of model parameters changes, the snapped elements will also be changed.
After annotation creation it is necessary to save its file using SA: Save Model or SL: Save All Modified Models command.